Woonunit 3x12m
Kenmerken
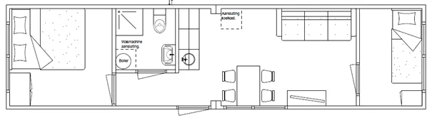
Woonunit te huur: 3x12m met 2 slaapkamers en moderne voorzieningen.
Bent u op zoek naar een praktische en comfortabele woonoplossing? Wij bieden een ruime 3x12 meter woonunit te huur aan, ideaal voor tijdelijke of permanente huisvesting. Deze unit is volledig uitgerust met moderne voorzieningen en biedt alles wat u nodig heeft voor comfortabel wonen.
Indeling en voorzieningen:
- 2 slaapkamers: een grote slaapkamer en een kleinere kamer, perfect voor een gezin of extra werkruimte.
- Ruime woonkamer/keuken: de keuken is voorzien van een inductiekookplaat, spoelbak en aansluitingen voor het plaatsen van een koelkast/vriezer en oven/magnetron.
- Moderne badkamer: voorzien van een ruime moderne douche, toilet, wastafel en aansluitingen voor een wasmachine en droger.
- Veel natuurlijk licht: de woonkamer is uitgerust met grote ramen voor veel daglicht, en de overige ruimtes zijn voorzien van draaikiepramen met rolluiken.
Extra services:
- Wij regelen het transport en het plaatsen van de woonunit, inclusief fundatie tegels.
- De minimale huurperiode bedraagt 6 maanden.
- Verzekering is inbegrepen in de huurprijs.
- Aansluiting op water, riool, elektra (380V 32A) en internet (aansluiting aanwezig) is voor eigen rekening.
Huurprijs is 140 euro per week, excl btw.
Transport en plaatsing tot 50 km, 750 euro excl btw.
Retour transport en demontage, 750 euro excl btw.
Incl levering en plaatsing fundatietegels, excl telescoopkraan.
Interesse? Neem contact met ons op voor meer informatie of om de mogelijkheden te bespreken!
Vergunningen
Voordat u een woonunit huurt, is het verstandig om een vergunningscheck te doen via https://omgevingswet.overheid.nl/checken. Als blijkt dat u een vergunning nodig heeft, kunt u contact opnemen met uw gemeente voor verdere stappen. In de meeste gevallen is een tijdelijke bouwvergunning vereist, waarbij bepaalde technische gegevens van de unit moeten worden ingediend. De benodigde specificaties staan hieronder vermeld en kunt u gebruiken voor de aanvraag. Voor aanvullende informatie of vragen kunt u uiteraard bij ons terecht.
Bekijk wat onze klanten zeggen over onze dienstverlening
Hele fijne manier van communiceren, zeer attent, meedenkend, meewerkend en humor. Als alle mensen op deze manier ondernemer zouden zijn, zou de wereld er een stuk fijner uitzien.
Helene Marcus
Ontzettend tevreden over de woonunits, zien er echt super goed uit! De service had ook echt niet beter gekund!
Wij bedanken Klaas & zijn team en raden hem aan iedereen aan!
Britt Goertz
Wij hebben 4 units voor tijdelijke bewoning aangeschaft. Van begin tot eind goed advies, prettige communicatie, afspraken nagekomen en opleverpuntjes snel verholpen. Een fijne samenwerking.
Jasper van Raaij












